Used Metal Buildings
Superior Metal Buildings Available at Fraction of Cost
Please Call for a Free Quote 303-948-2038 ( *All Calls are Recorded ) Se Habla Español.
Superior Metal Buildings Available at Fraction of Cost


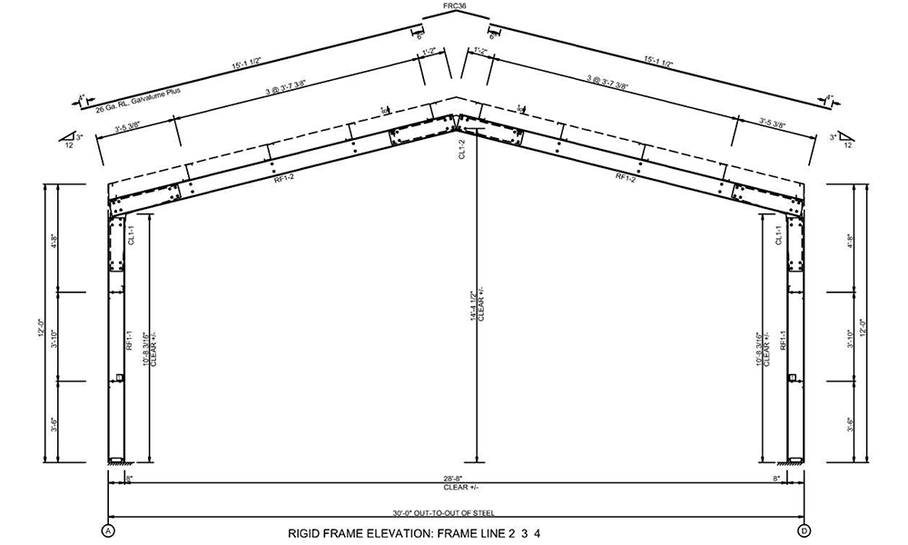
| Building Width | 30 |
| Building Length | 52 |
| Building Height | 12 |
| Roof Pitch | 3:12 |
| Roof Style | Gable Roof |
| Snow Load | 30 lb ground |
| Wind Speed | 115 mph |
| Condition | New / Never been erected |
| Building Information | Building Package Includes: 16 ga Roof Purlins, Wall Girts, Eave Struts, Endwall Columns 14 ga Sidewall Column and Rafter 14 ga Base Angle 3/8″ Structural Plates 26 ga Galvalume Roof – 3:12 Pitch (1) 3070 Steel Walk Door and Jamb – Field Located (1) 10′ W x 7′,8′,or 9′ H Framed Opening in Endwall with Trim Package All Needed Accessories, Closures, Butyl Tape, Sealant, Bolts, ect. |
| Location | All US States |
