Used Metal Buildings
Superior Metal Buildings Available at Fraction of Cost
Please Call for a Free Quote 303-948-2038 ( *All Calls are Recorded ) Se Habla Español.
Superior Metal Buildings Available at Fraction of Cost

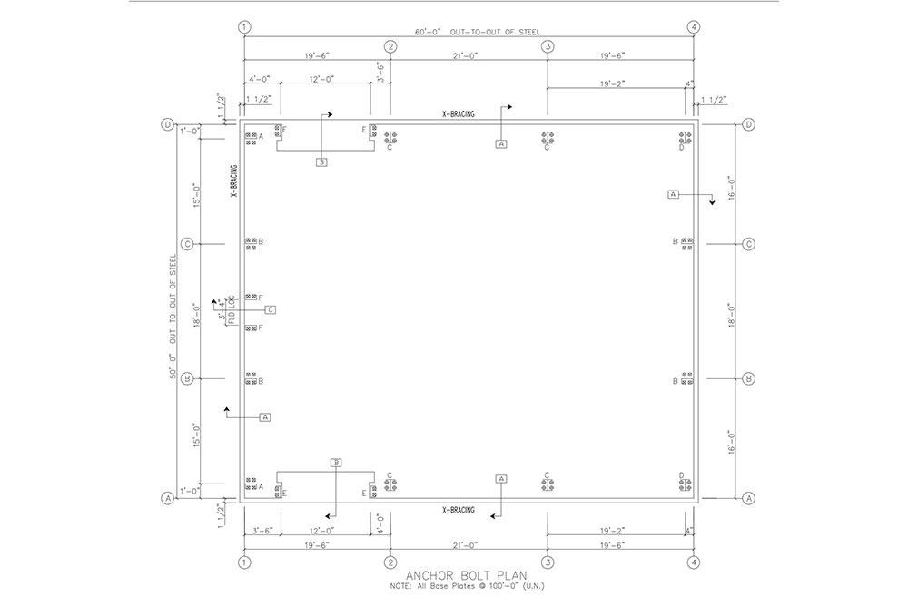
| Building Width | 50 | 
| Building Length | 60 | 
| Building Height | 18 | 
| Roof Pitch | 1:12 | 
| Roof Style | Gable Roof | 
| Snow Load | 0 lb ground | 
| Wind Speed | 115 mph | 
| Condition | New / Never been erected | 
| Building Information | This was a cancelled building order. It is at the factory and ready to ship. It comes with engineer stamped plans, gutters, downspouts and 14’ high openings.  | 
| Location | Arizona | 
