Used Metal Buildings
Superior Metal Buildings Available at Fraction of Cost
Please Call for a Free Quote 303-948-2038 ( *All Calls are Recorded ) Se Habla Español.
Superior Metal Buildings Available at Fraction of Cost

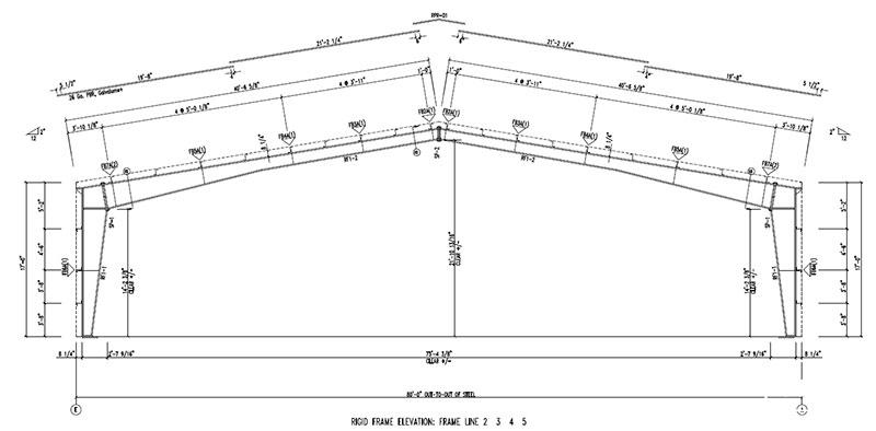
| Building Width | 80 | 
| Building Length | 120 | 
| Building Height | 16 | 
| Roof Pitch | 2:12 | 
| Roof Style | Gable Roof | 
| Snow Load | 20 lb ground | 
| Wind Speed | 90 mph | 
| Condition | New / Never been erected | 
| Building Information | This was a cancelled building order. It is at the factory and ready to ship. The price has been reduced to sell quickly. Light Stone colored walls with Burnished Slate trim This building has a clear-span design and is ideal for a warehouse, workshop, or auto repair shop  | 
| Location | Colorado | 
